Barkly Park Pavilion Upgrade
About this project
Barkly Park is a valued community space in Rutherglen, providing important infrastructure and facilities for sport, recreation and social events. While the park is owned and managed by the Department of Energy, Environment and Climate Action (DEECA), Council recognises the significant social and physical benefits it provides for the Rutherglen community.
Upgrading the pavilion, particularly to better support women and girls' participation in sport, has been a priority for the Barkly Park Committee of Management for a number of years.
How we got here
In July 2022, Council applied for funding under the Victorian Government's Local Sports Infrastructure Fund to upgrade the change rooms to female-friendly standards. That application was unsuccessful.
During the 2022 state election campaign, both major parties pledged funding to upgrade the facilities. Following the return of the Labor Government, $1M was confirmed. Council also committed $400,000, bringing the total available funding to $1.4M.
A Council-facilitated Masterplan for the site was required before funding could be accessed. Following extensive community consultation to inform a 10–15-year vision for the park, the Barkly Park Master Plan was completed in 2024.
What's happening now?
The funding agreement between the Victorian State Government and Indigo Shire Council has now been formally executed.
Council has been working closely with the Barkly Park Committee of Management and the park's user groups, including the Rutherglen Football and Netball Club, Rutherglen United Cricket Club and Rutherglen Auskick, to refine the project scope. Through a collaborative process, the project provides for the refurbishment of the existing change rooms and an extension, with everyone aligned on a shared vision for the facility.
Tenders have been invited for an architect to complete the detailed design and specifications. Once that work is complete, the project will move to the construction tender phase.
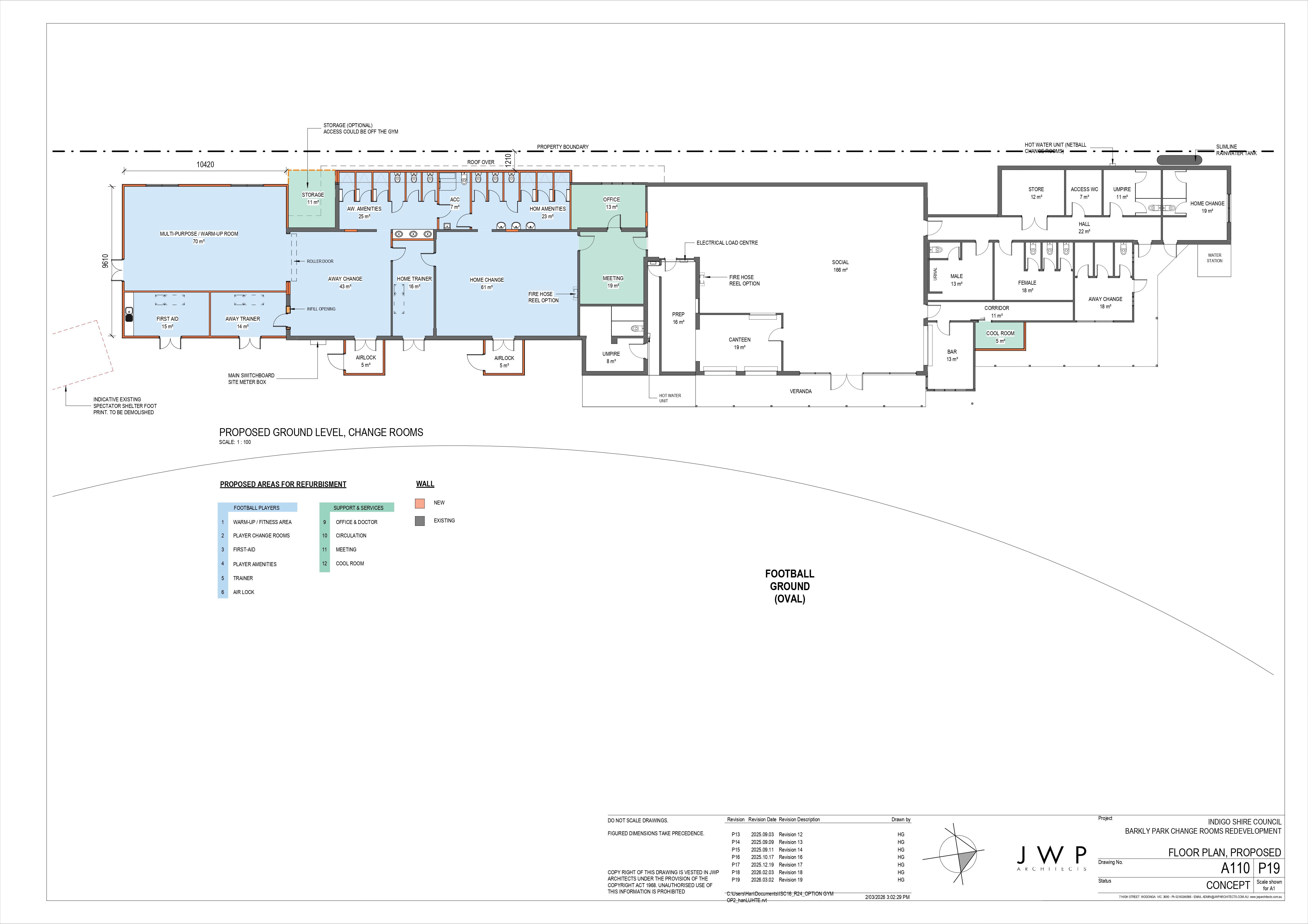
A concept plan for the project can be downloaded here.
What will be delivered
This project will deliver a refurbishment of the two existing football change rooms, including:
- New amenities within the change rooms which are designed to support women and girls' participation, including one fully accessible amenity
- A dedicated first aid room
- Two trainers' rooms
- An office meeting space and new cool room
- A multi-purpose room
- Improved storage facilities
These works will provide modern, inclusive and accessible spaces for players, volunteers and community groups.
How is this project being funded?
Funding contributor | Amount |
| Victorian Government (State Election Commitment | $1,000,000 |
| Indigo Shire Council | $400,000 |
$1,400,000 |


